Проект сто на три автомобиля с офисными помещениями на мансарде - Архитектурная мастерская Тышкевича
Проект сто на три автомобиля с офисными помещениями на мансарде

ОБЩАЯ ПЛОЩАДЬ:

200 кв.м

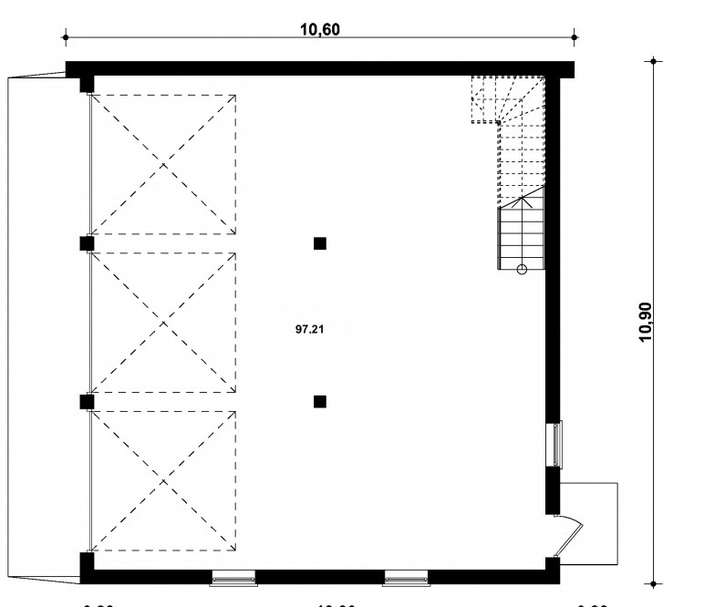
ПЛОЩАДЬ ГАРАЖА:

97.21 кв.м

ПЛОЩАДЬ  ОФИСНОЙ ЧАСТИ ЗДАНИЯ:

91.96 кв.м

РАЗМЕРЫ ВОРОТ:

3 м x 3 м

закажите этот проект прямо сейчас!
top
Продвижение сайта - cropas