Проект многофункционального здания(склад+офис+магазин) - Архитектурная мастерская Тышкевича
Проект многофункционального здания(склад+офис+магазин)

ОБЩАЯ ПЛОЩАДЬ:

140 кв.м

ПЛОЩАДЬ СКЛАДА:

61.91 кв.м

ПЛОЩАДЬ ГАРАЖА:

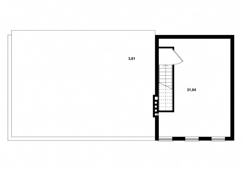
31.04 кв.м

ПЛОЩАДЬ  ОФИСНОЙ ЧАСТИ ЗДАНИЯ:

2 Этаж:

31.04 кв.м

Размеры ворот:

2.50 м  x 3.0 м

2.50 м х 2.50 м

закажите этот проект прямо сейчас!
top
Продвижение сайта - cropas