Проект двухэтажного дома с плоской крышей и террасами - Архитектурная мастерская Тышкевича

Проект двухэтажного дома с плоской крышей и террасами

АРХИТЕКТУРНЫЙ СТИЛЬ:

СОВРЕМЕННЫЙ

Материал для стен:

силикатный блок

Перекрытия:

монолитные

Кровля:

Эксплуатируемая наплавляемая

Фундамент:

Плитный

Наружная отделка:

Тонкослойная мин. штукатурка

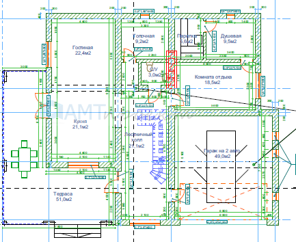
ДЛИНА:

19 м

ШИРИНА:

14 м

ОБЩАЯ ПЛОЩАДЬ:

222.4 кв.м

закажите этот проект прямо сейчас!
top
Продвижение сайта - cropas