Проект Brassica 280 кв.м - Архитектурная мастерская Тышкевича
Проект Brassica 280 кв.м. Проект Brassica 280 кв.м.
Проект Brassica 280 кв.м. Проект Brassica 280 кв.м.
Проект Brassica 280 кв.м
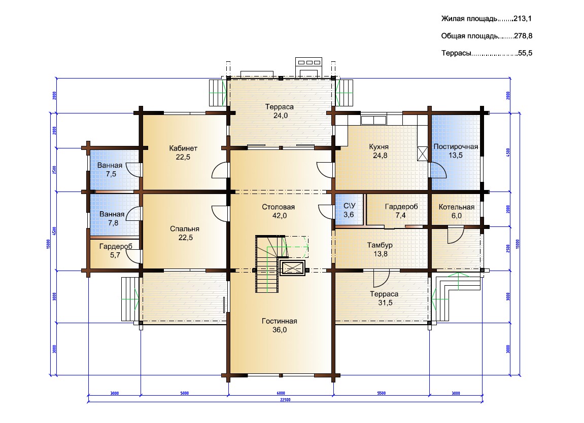
Проект двухэтажного деревянного дома со вторым светом в гостиной и столовой, барбекю-камином, размещенном на террасе.

АРХИТЕКТУРНЫЙ СТИЛЬ:

СОВРЕМЕННЫЙ

Материал для стен:

профилированный/клееный/оцилиндрованный брус

Кровля:

гибкая/металло/керамическая черепица,

Фундамент:

ленточный, свайный, плита, ростверковый

ДЛИНА:

17 м.

ШИРИНА:

22.5 м

ОБЩАЯ ПЛОЩАДЬ:

278.8 кв.м

Жилая площадь:

213.1 кв.м

Площадь террас:

55.5 кв.м

закажите этот проект прямо сейчас!
top
Продвижение сайта - cropas