Гараж АН47 - Архитектурная мастерская Тышкевича
Гараж АН47

Для одного автомобиля с навесом

  • С ПОДСОБНЫМ ПОМЕЩЕНИЕМ

ПЛОЩАДЬ строения:

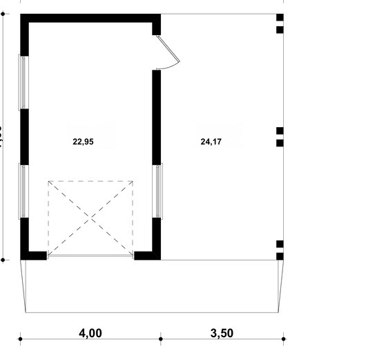
47.12 кв.м

ПЛОЩАДЬ ГАРАЖА:

22.95 кв.м

ПЛОЩАДЬ НАВЕСа:

24.17 кв.м

закажите этот проект прямо сейчас!
top
Продвижение сайта - cropas