Гараж АА81 - Архитектурная мастерская Тышкевича
Гараж АА81

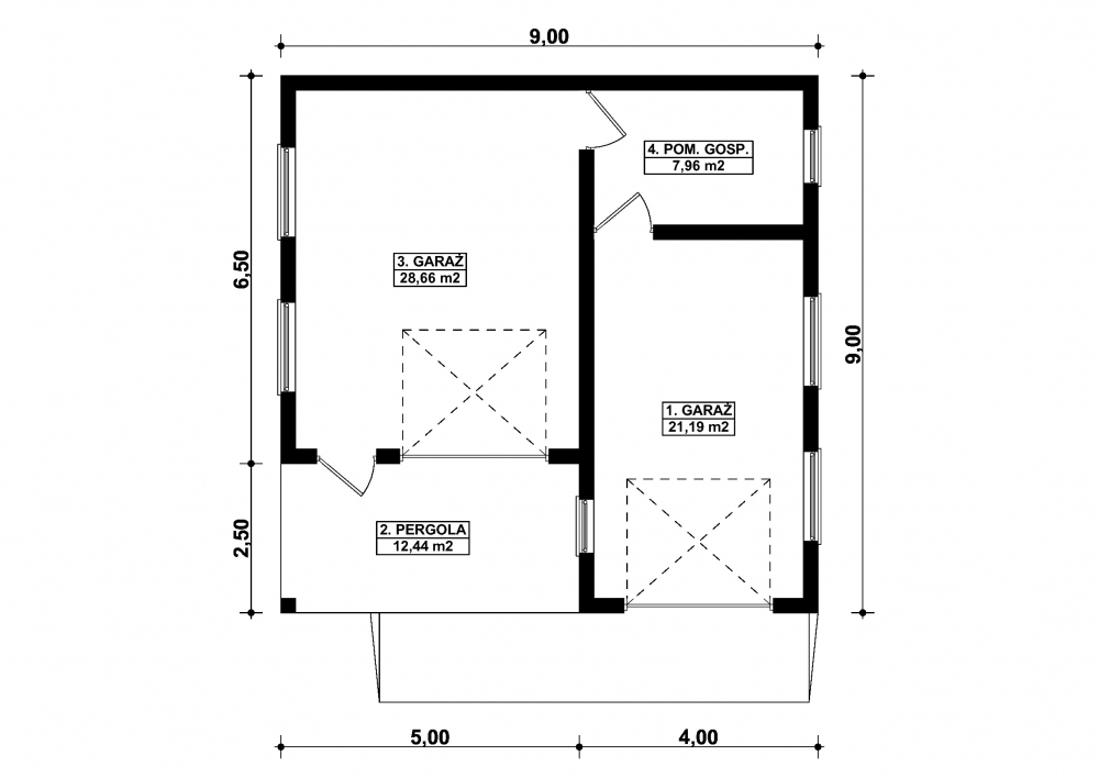
Для двух автомобилей

  • С подсобными помещениями

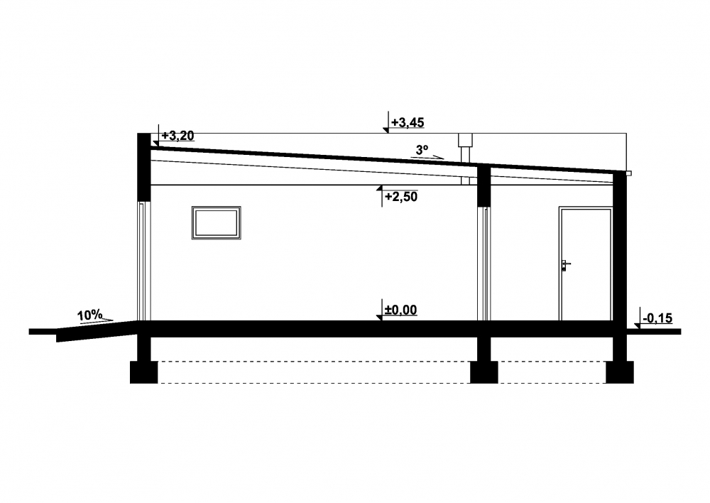
Площадь строения:

81 кв.м

ПЛОЩАДЬ ГАРАЖА 1:

28.66 кв.м

ПЛОЩАДЬ ГАРАЖА 2:

21.19 кв.м

ПЛОЩАДЬ ПОДСОБНОГО ПОМЕЩЕНИЯ:

7.96 кв.м

закажите этот проект прямо сейчас!
top
Продвижение сайта - cropas