+375 29 674-10-73 , +375 29 629-22-36
Toggle navigation
Главная
Наши услуги
Дизайн интерьера и экстерьера
Проектирование
Индивидуальных жилых домов и хозяйственных построек
Общественных и производственных зданий
Дом под ключ
Реконструкция
Авторский надзор
О нас
Цены
Проекты
Проекты жилых домов, дач и коттеджей
Проекты объектов для малого бизнеса
Контакты
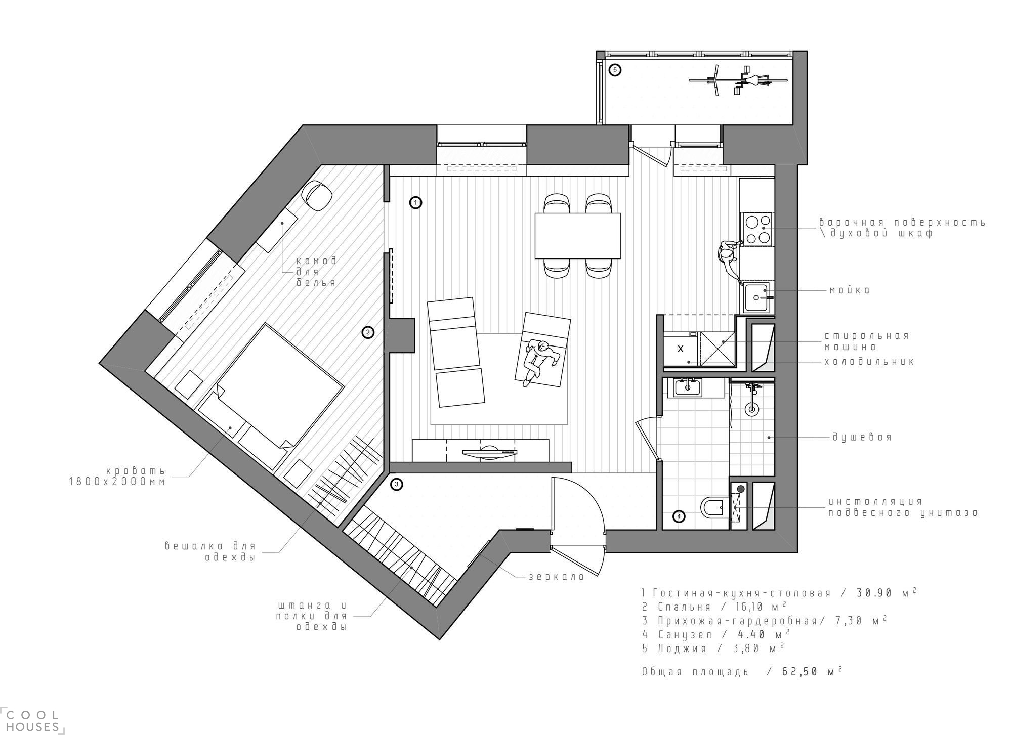
Дизайн квартиры брутальный минимализм
Дизайн квартиры брутальный минимализм
закажите этот проект прямо сейчас!
Заказать проект
Ваше имя*
Ваш e-mail*
Тема
Сообщение
ЗАКРЫТЬ
Продвижение сайта -
cropas